Opperman Residence

Montclair — Opperman Residence

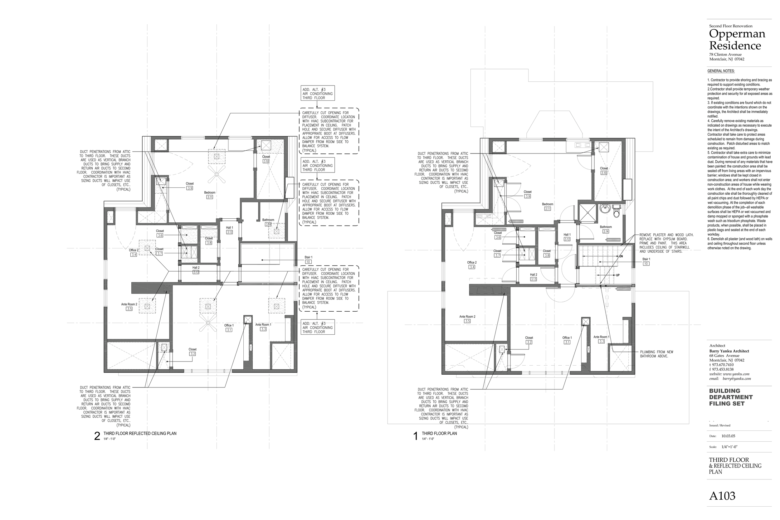
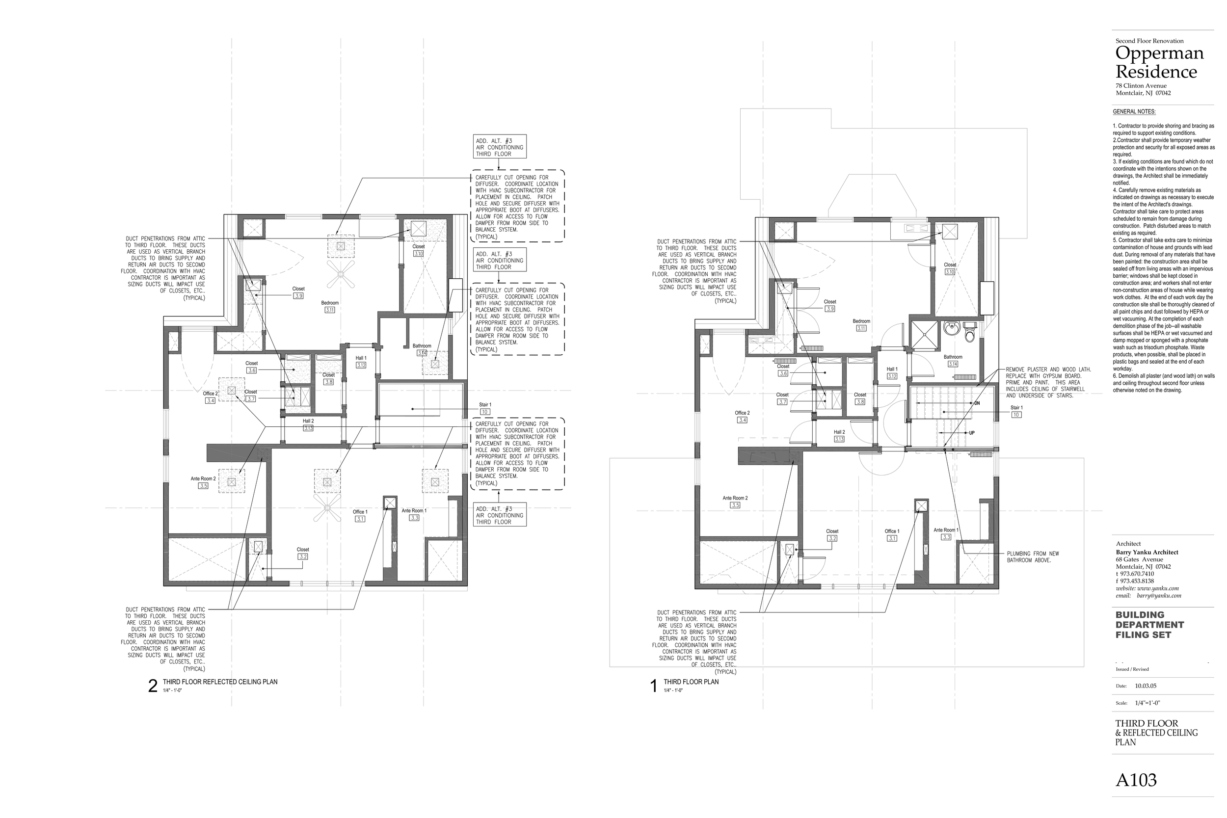
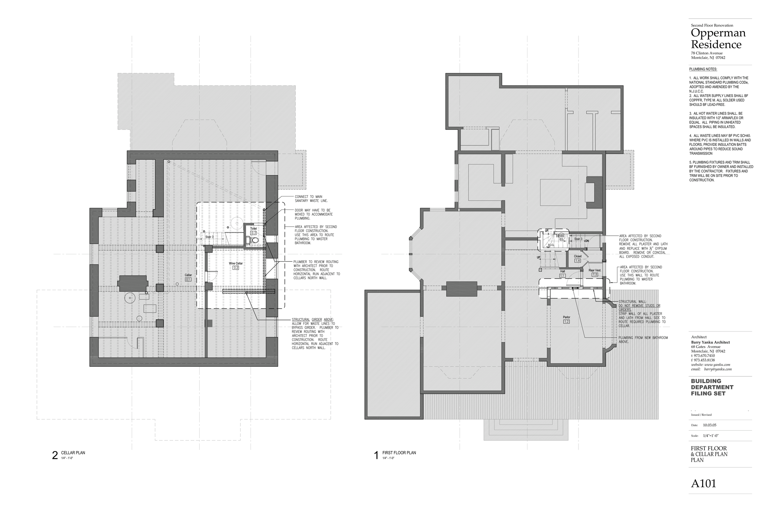
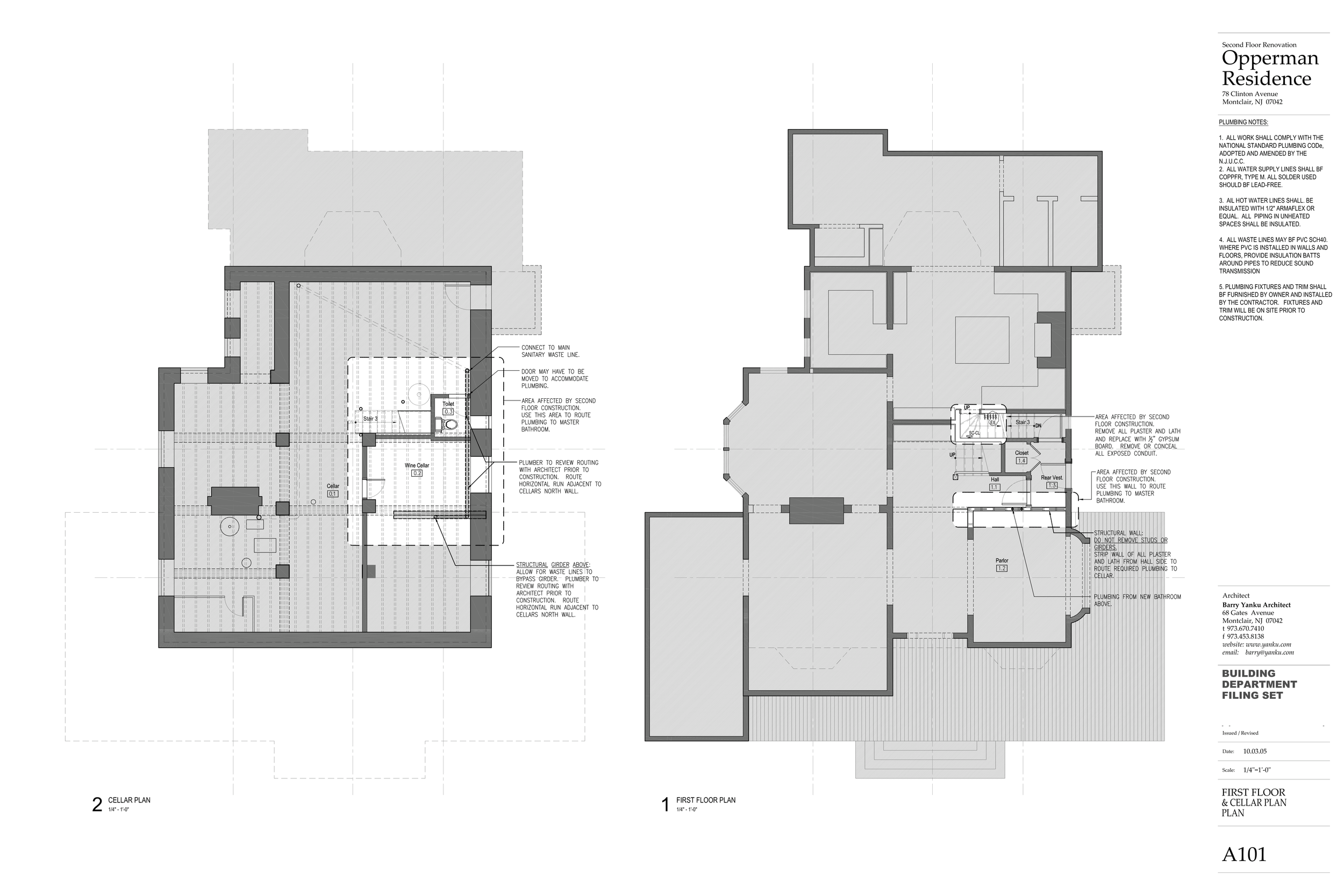
Located within the historic residential landscape of Montclair, the Opperman Residence occupied a substantial Victorian home whose exterior character remained rich with ornament, scale, and period presence. Rather than alter the architectural identity of the house from the street, the project focused inward—transforming the second floor into a new living environment calibrated to contemporary life. The challenge was to respect the legacy of the Victorian shell while rethinking an interior plan shaped by another era.

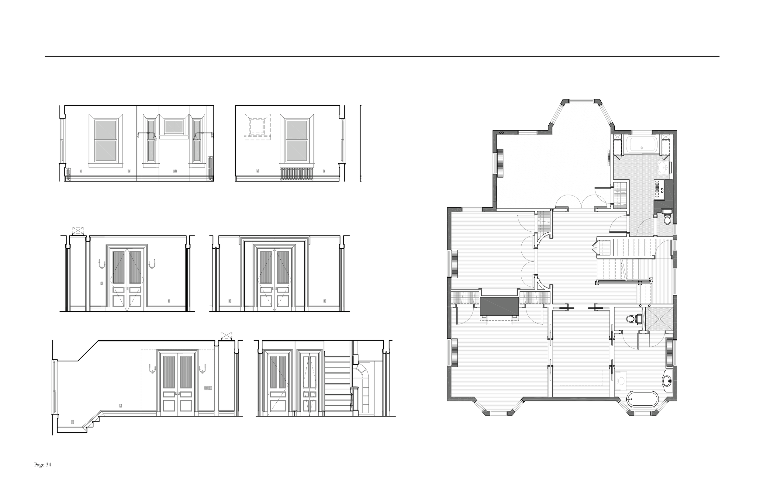
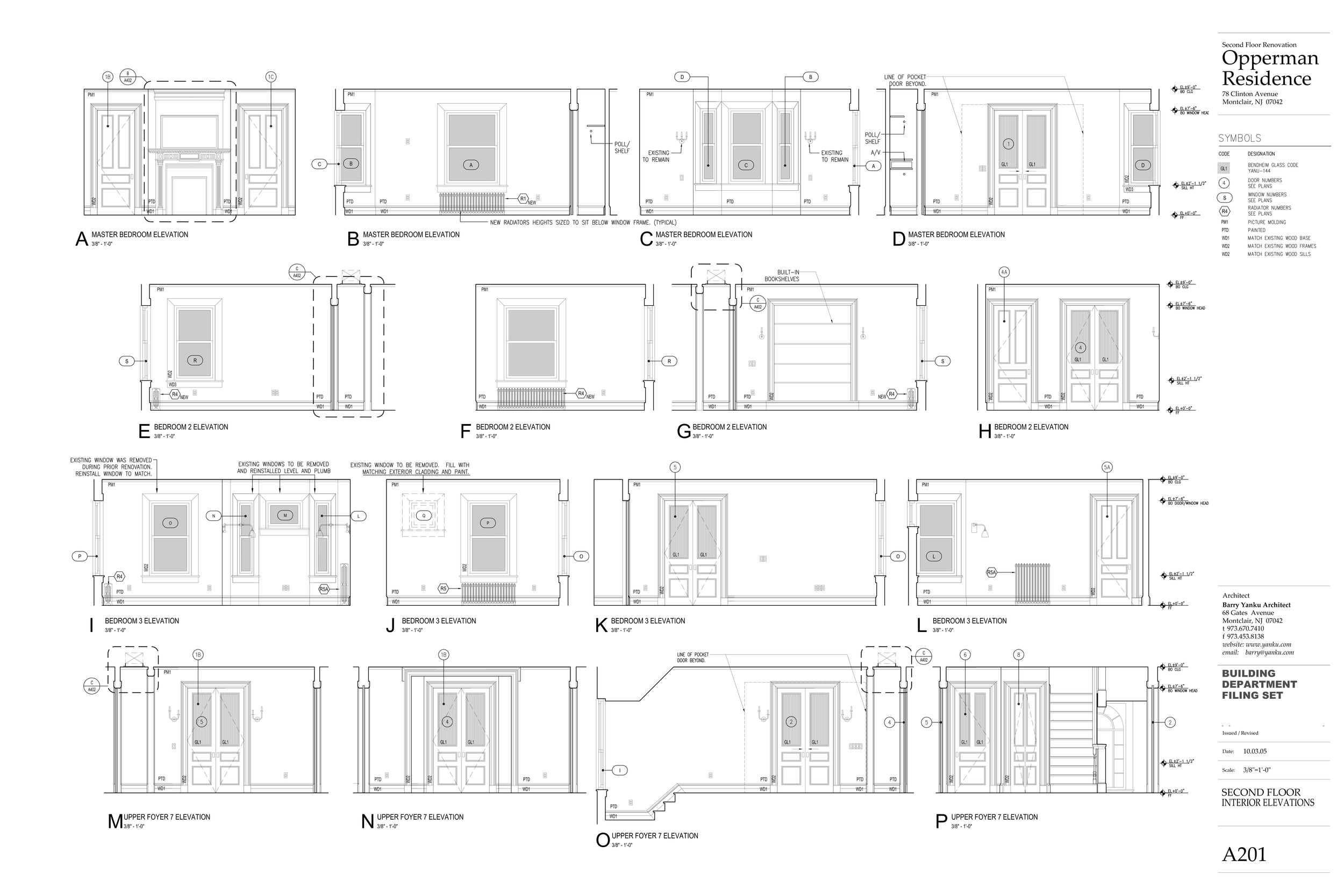
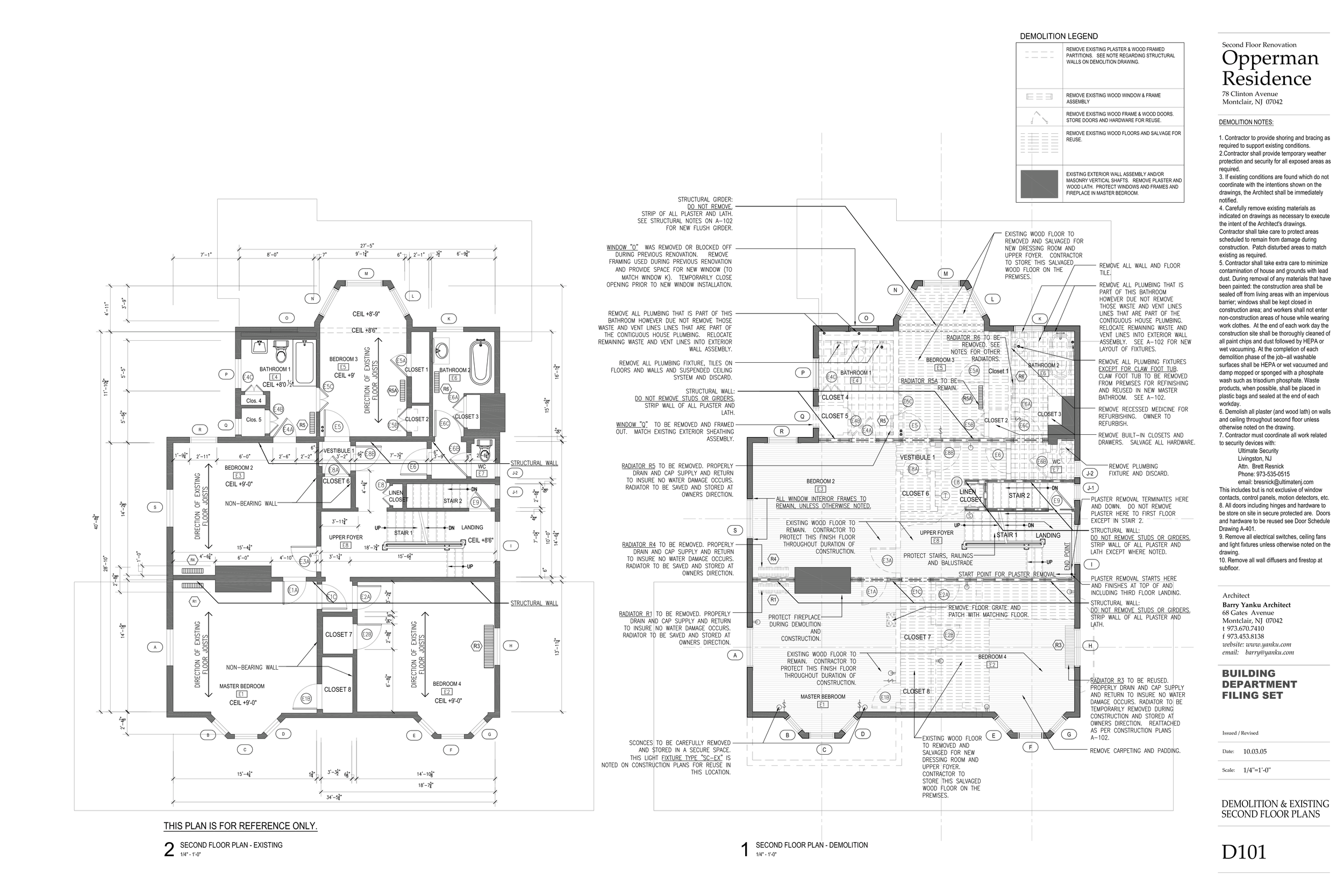
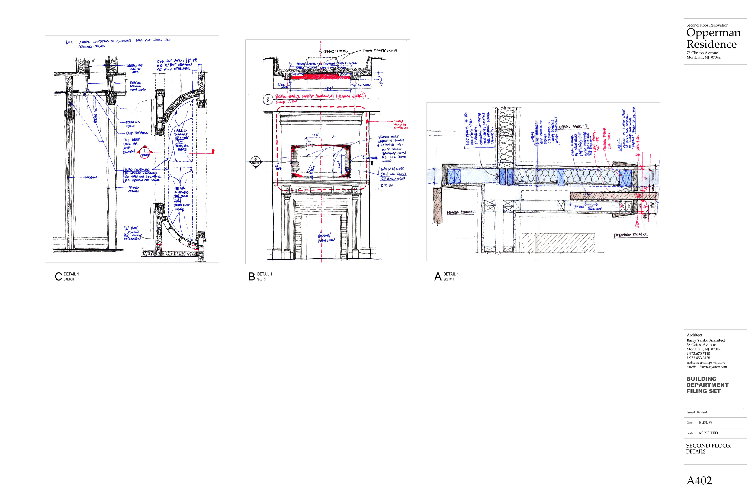
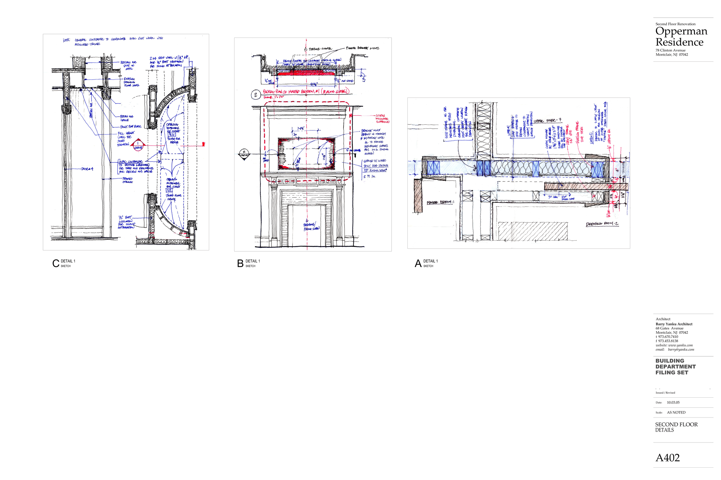
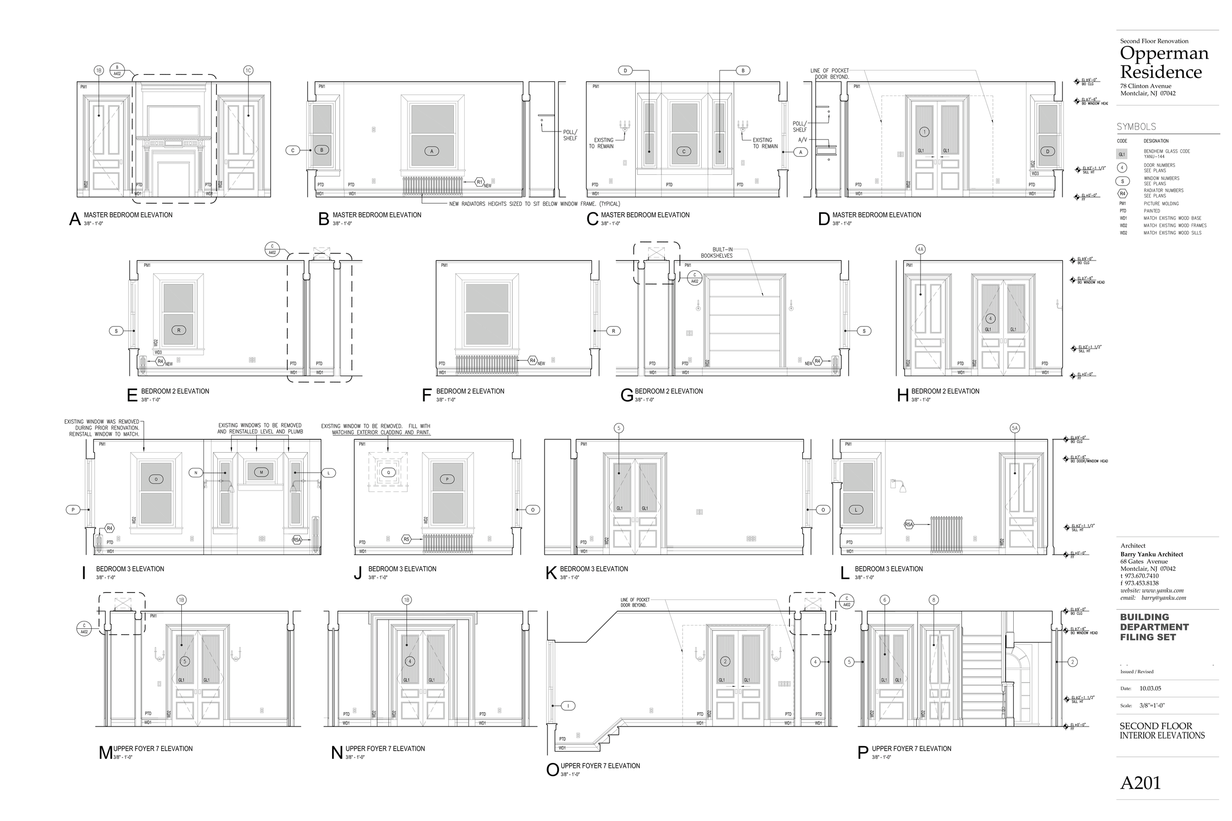
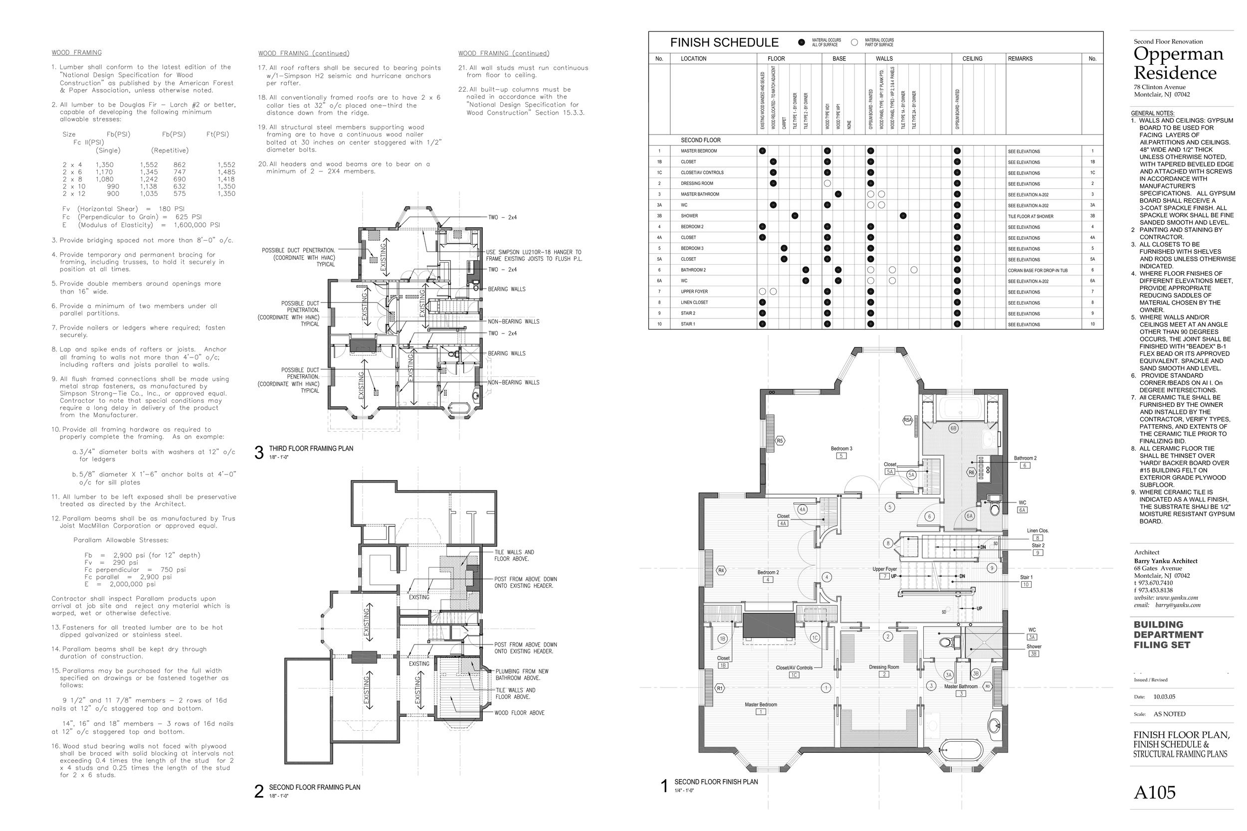
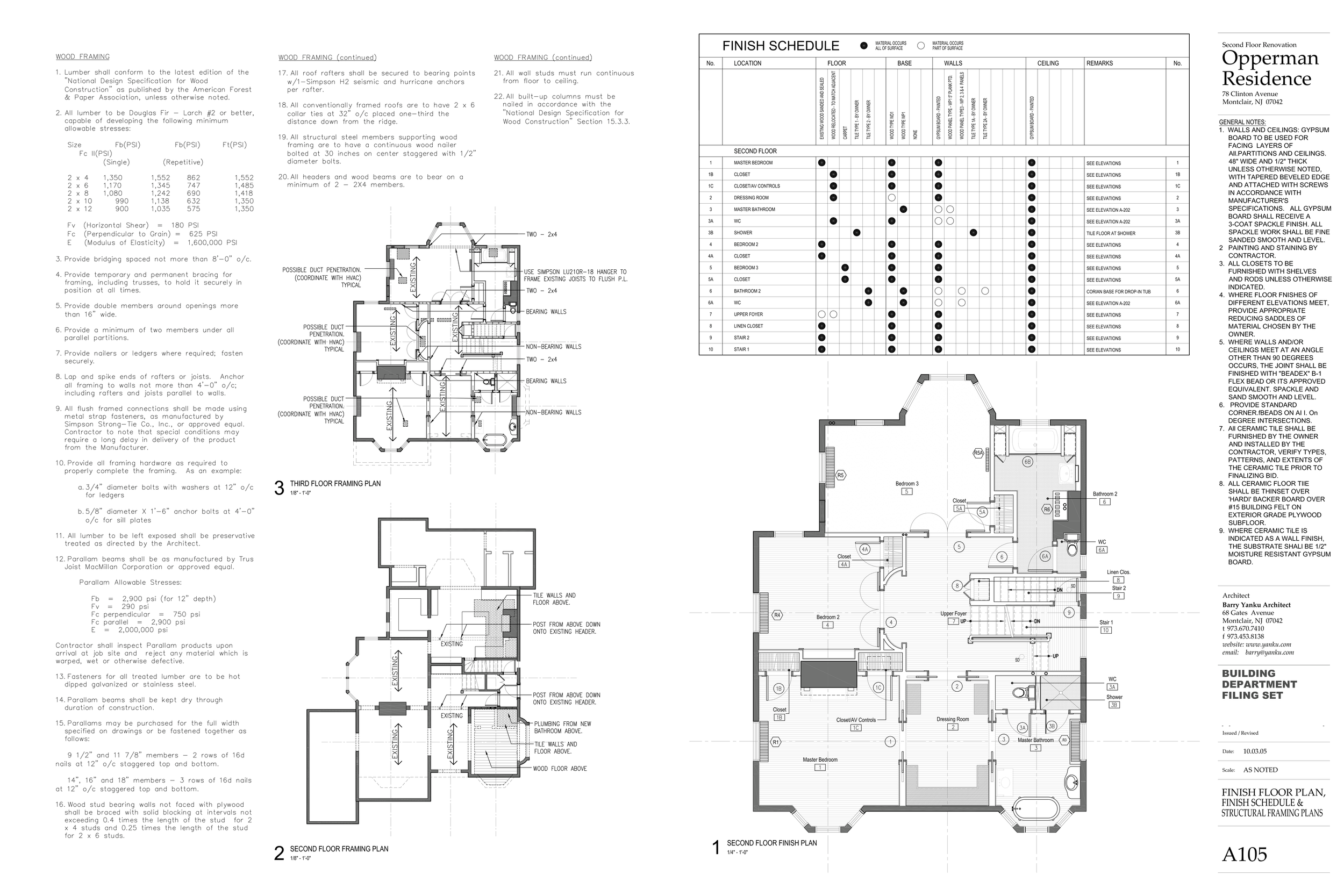
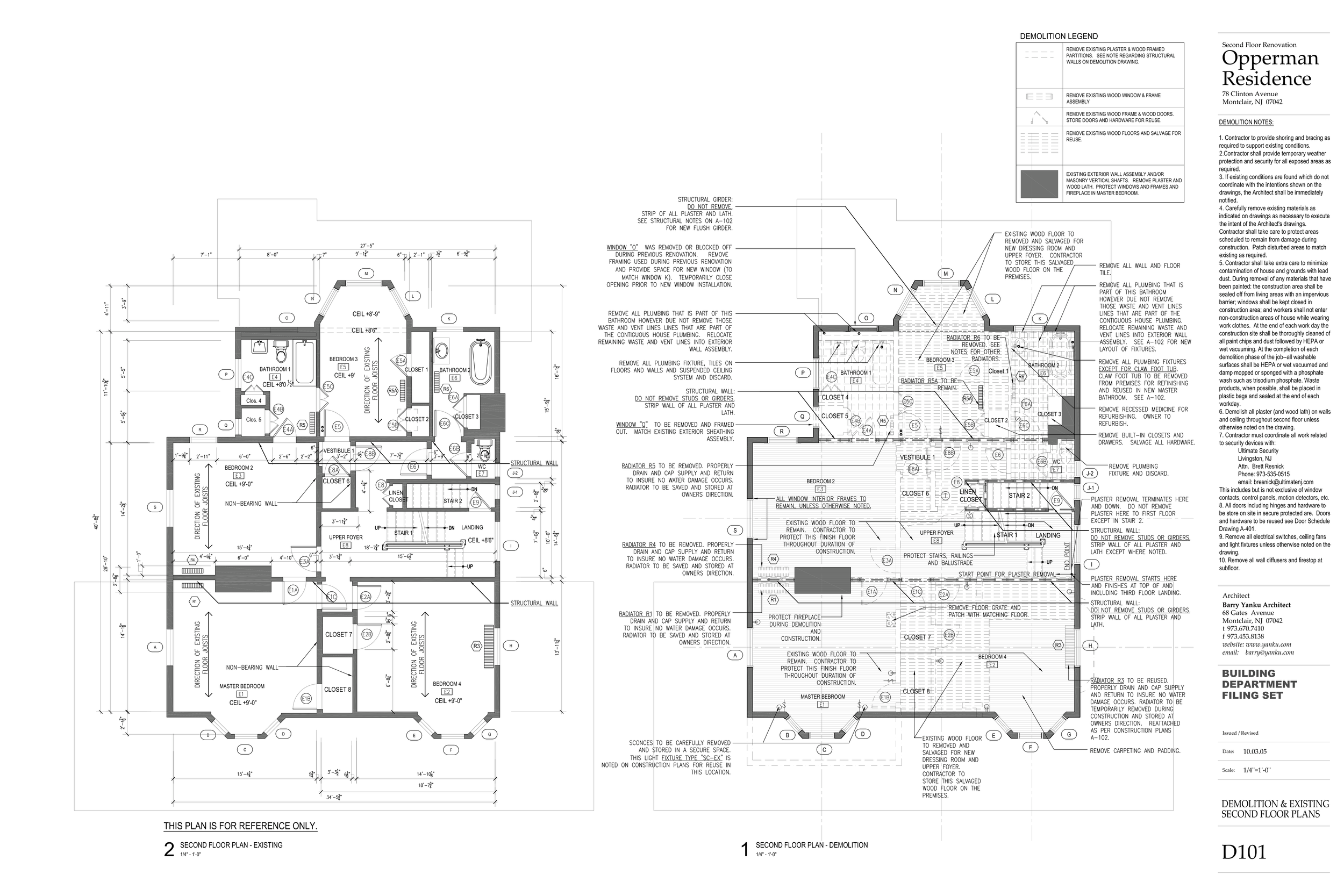
The renovation began with a complete clearing of the existing upper floor, removing partitions and outdated room arrangements to return the level to its essential structure. From that open framework, a new parlor-floor composition was created: spacious, calm, and carefully ordered. Two large bedrooms anchored the plan, including a primary suite organized with a dedicated dressing room and a generous bath. A secondary bathroom and supporting spaces were integrated with equal attention, creating a floor that felt both luxurious and practical. What had once been a maze of smaller rooms became a coherent suite of spaces defined by proportion, light, and movement.

Architecturally, the Opperman Residence explored the contrast between historic enclosure and modern openness. Influenced by the spatial discipline of Gwathmey Siegel and the livable refinement associated with Dennis Wedlick, the design introduced clarity without sacrificing warmth. The result was a Victorian house whose exterior continued to speak of its past, while its reimagined interior offered a distinctly contemporary way of living.

Previous
Previous

Stansel Kelly Residence

Next
Next

Rudin Residence