Stansel Kelly Residence

Montclair — Stansel Kelly Residence

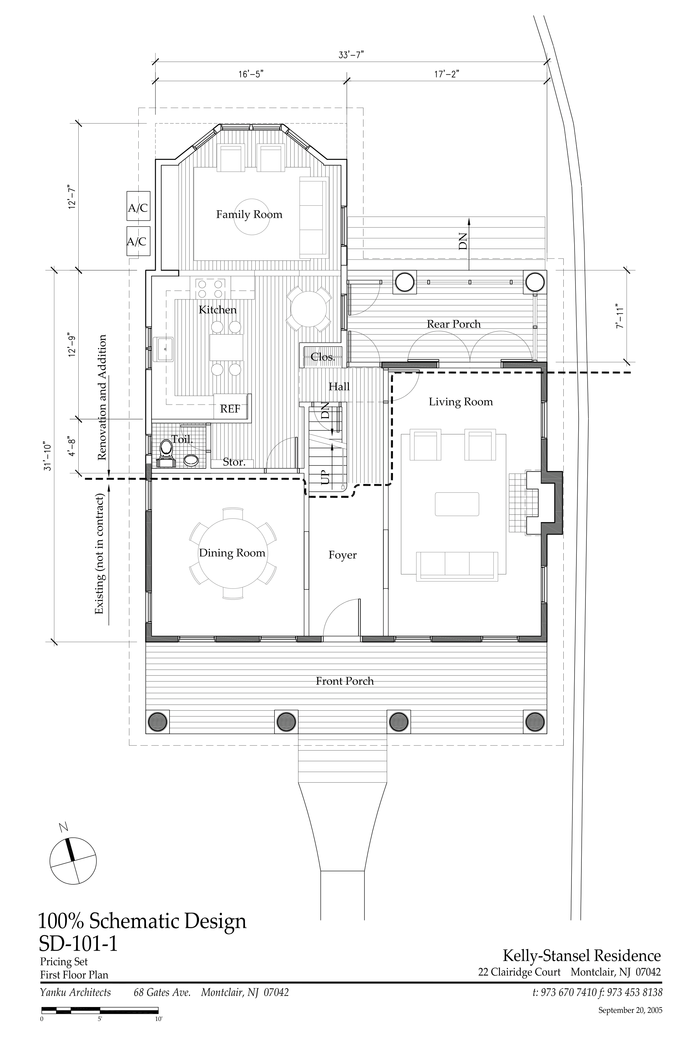
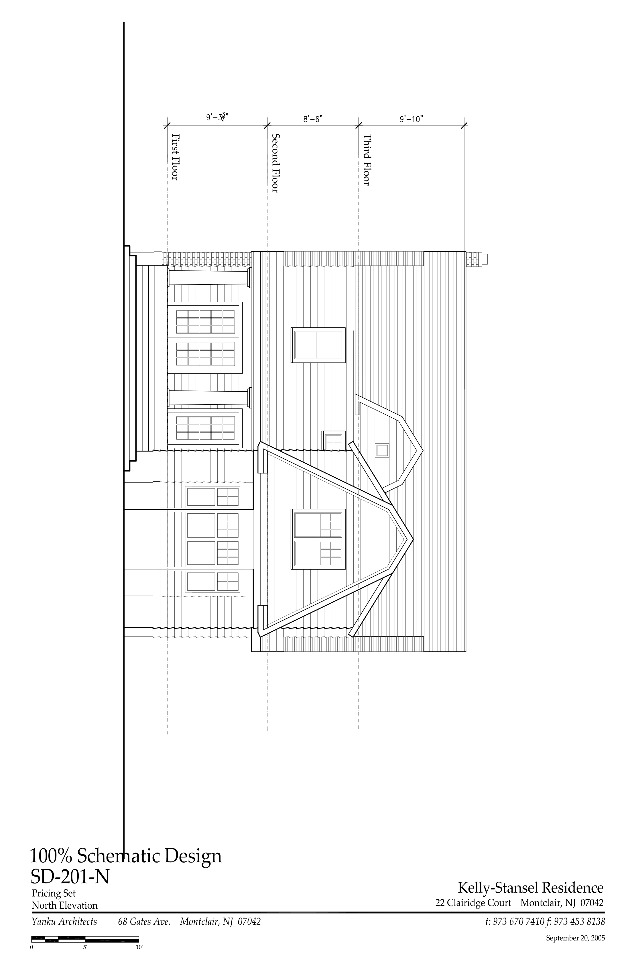
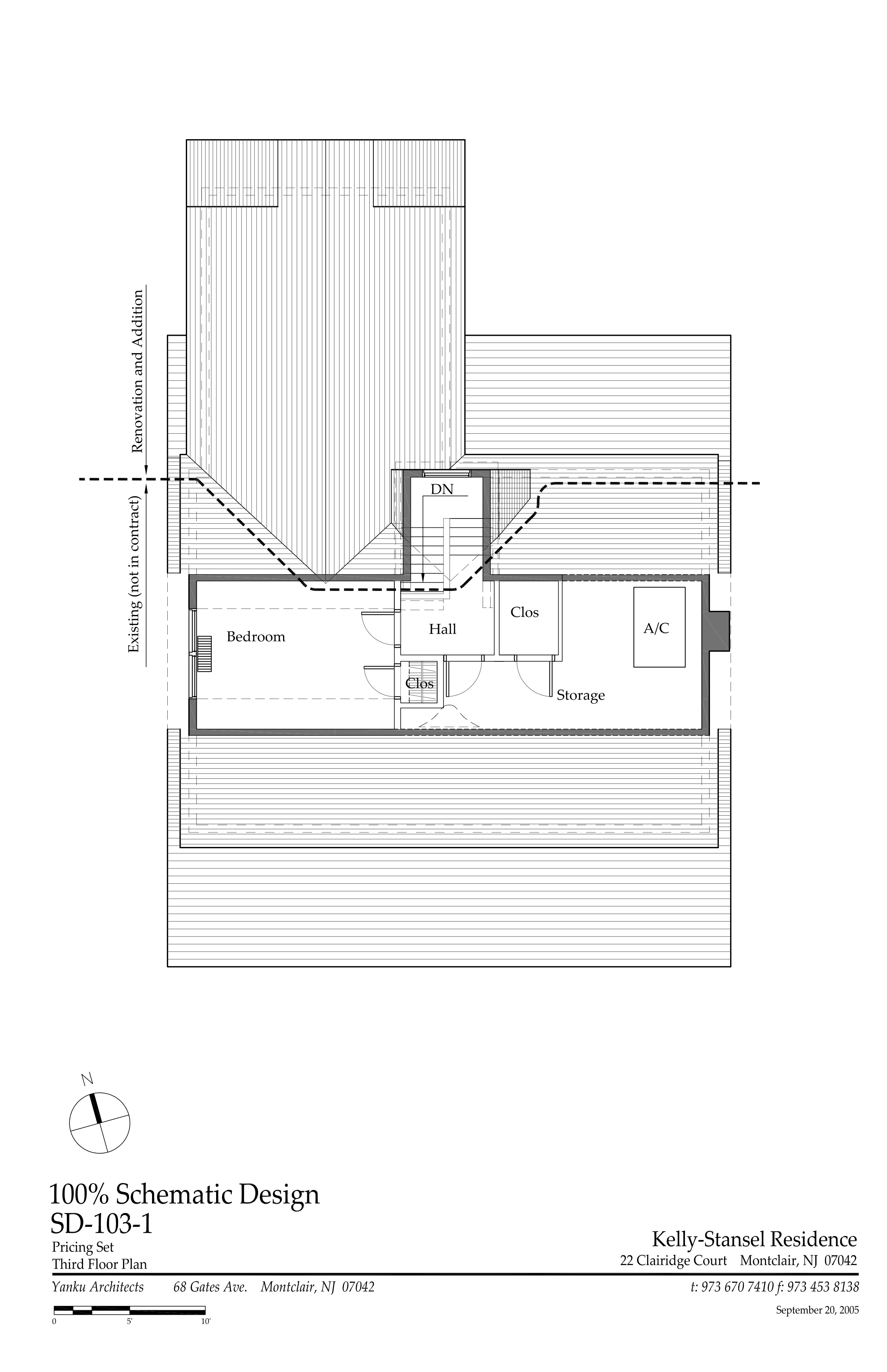
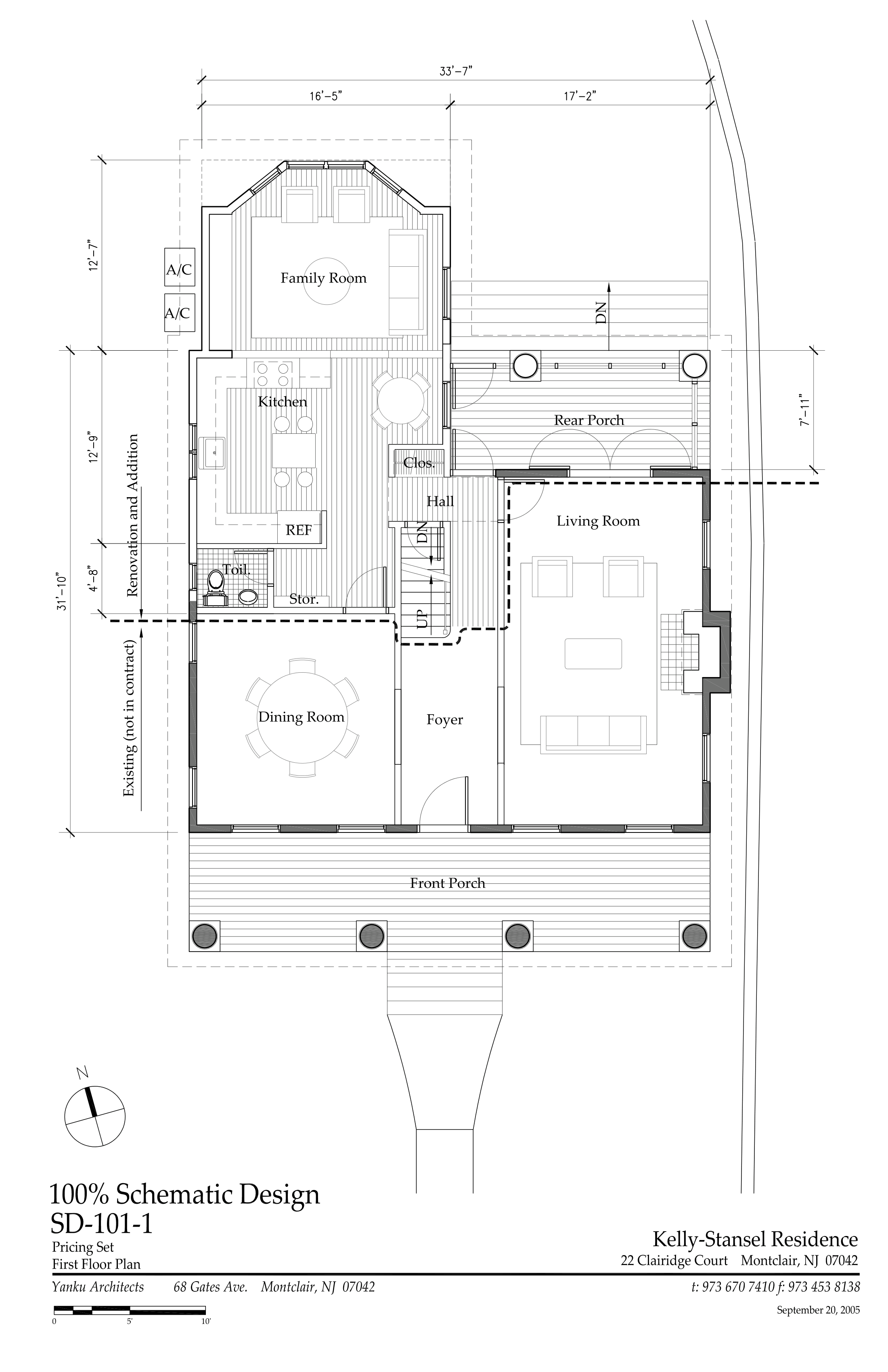
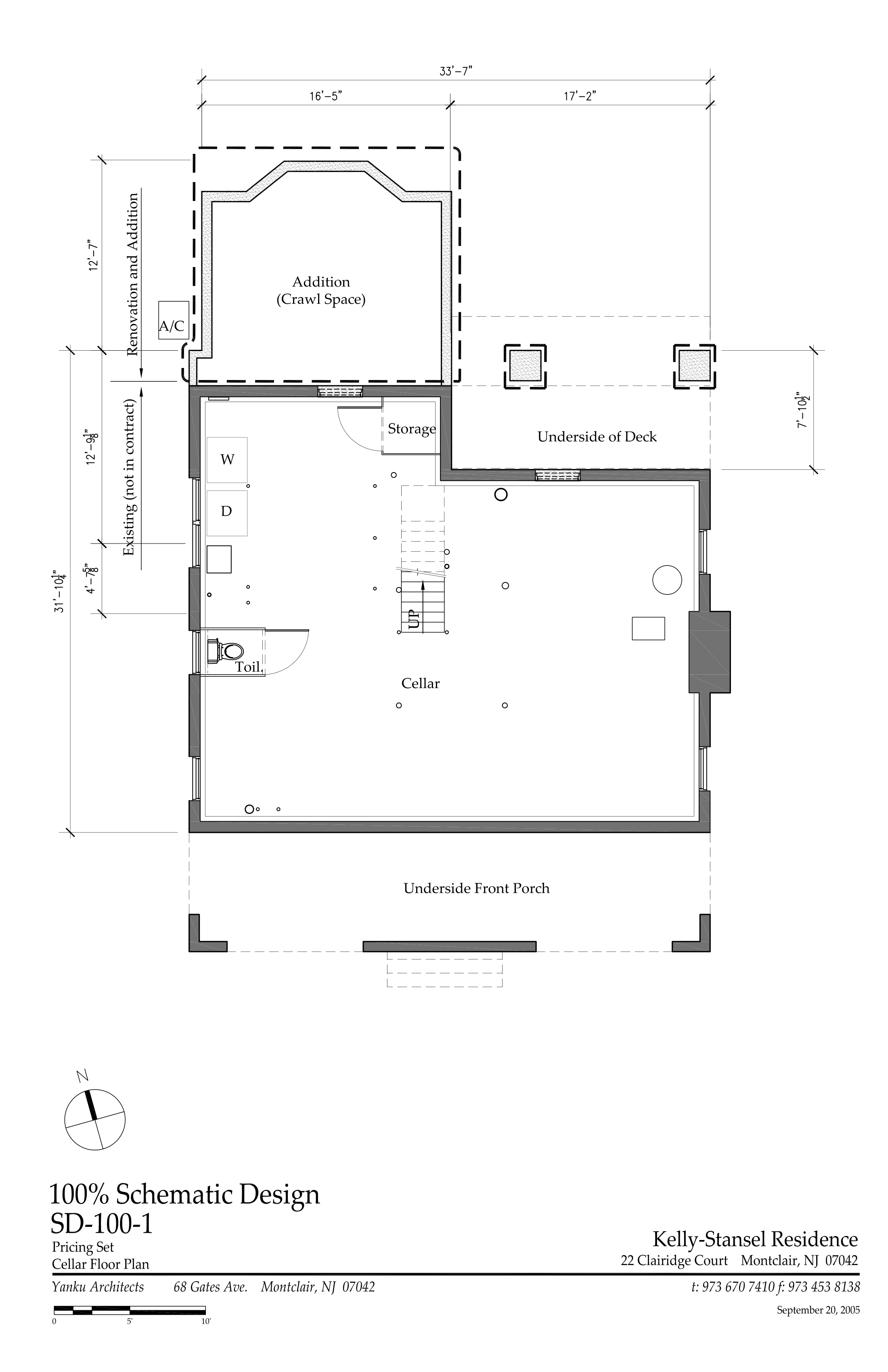
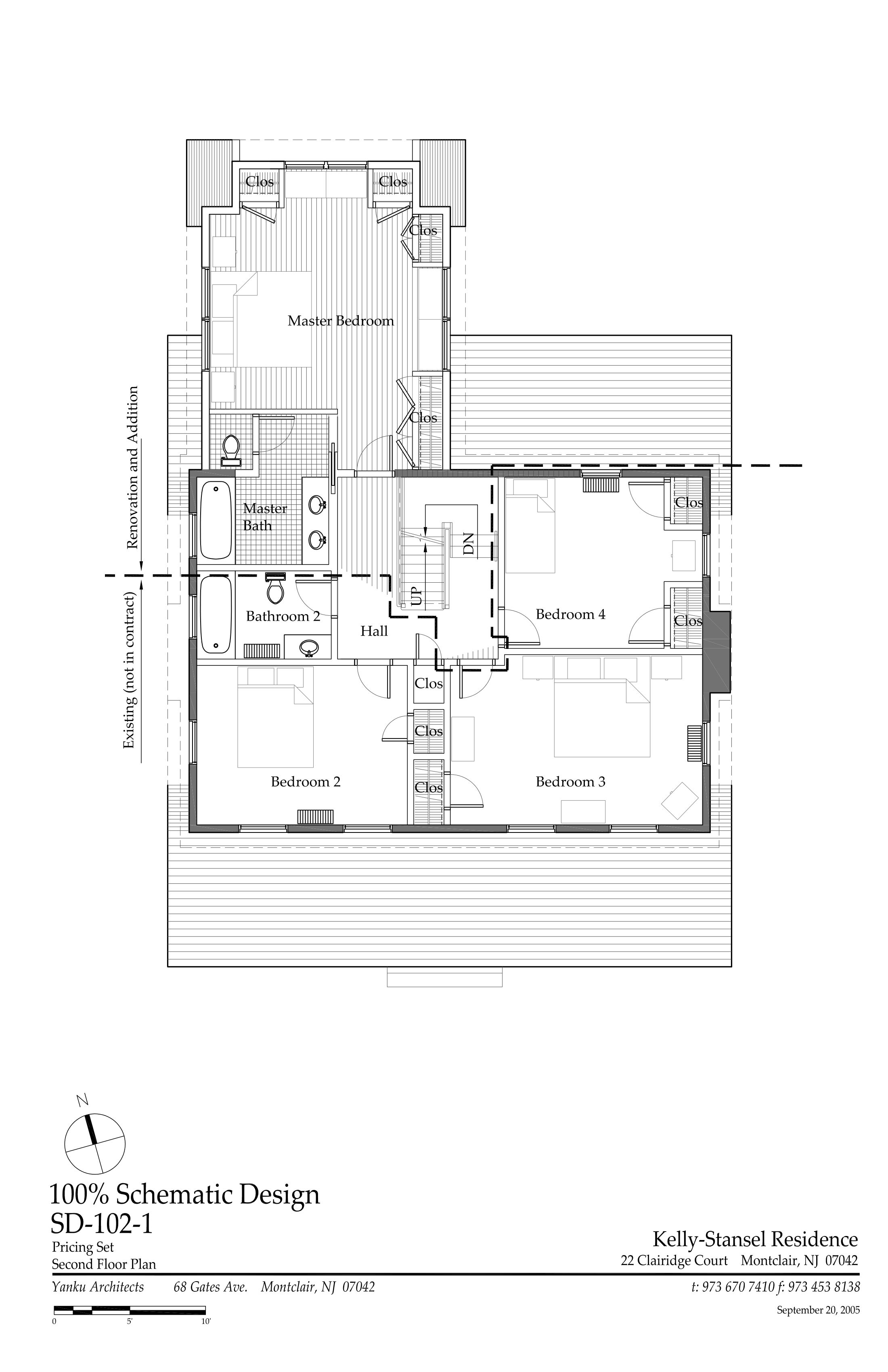
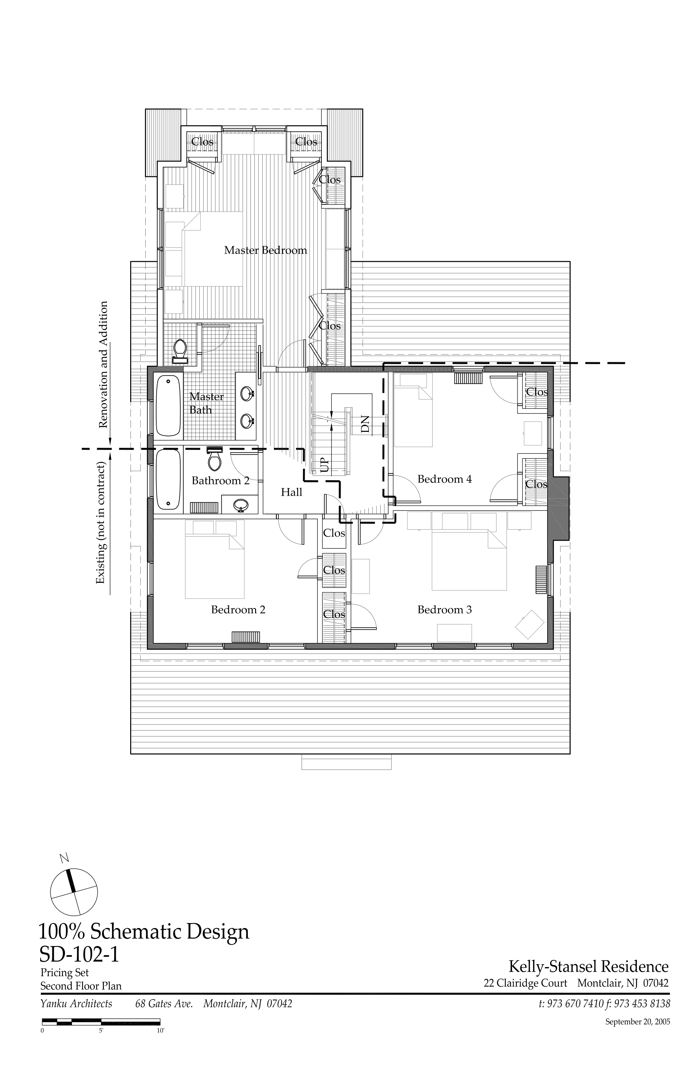
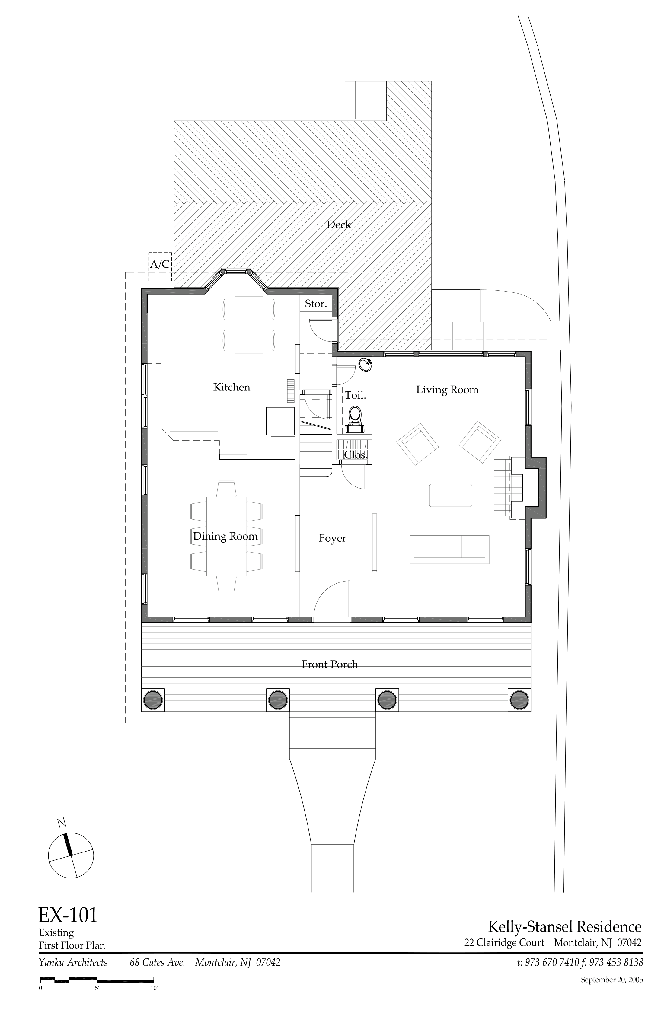
Set within the established residential fabric of Montclair, the Stansel Kelly Residence began as a traditional American Dutch Colonial whose identity and street presence were deeply tied to the character of the neighborhood. The design challenge was not to replace that heritage, but to extend it thoughtfully—allowing the house to grow in scale, function, and contemporary livability while preserving the familiar dignity of its front façade. The original home remained intact toward the street, maintaining its historic composure, while a new architectural layer unfolded quietly to the rear.

The addition reimagined the daily life of the house through a more open and generous plan. A new kitchen and dining room became the social heart of the residence, expanding outward to connect directly with the landscape. This relationship to the garden was reinforced through the introduction of a porch and patio, creating a sequence of interior and exterior rooms that encouraged gathering, light, and seasonal living. Above, the upper floors were transformed with additional bedrooms and a new primary suite, bringing comfort, privacy, and a clearer organization to family life.

Architecturally, the project explored a dialogue between tradition and modernity. Influenced by the disciplined spatial clarity of Gwathmey Siegel and the transitional residential sensibility of Dennis Wedlick, the intervention balanced crisp proportion, functional planning, and contemporary openness with the warmth and scale of a suburban home. The result was a residence that honored its origins while quietly evolving into a more modern expression of living in Montclair.

Previous
Previous

Buck Goulder Residence

Next
Next

Opperman Residence