Zipstein Residence

Montclair — Zipstein Residence

Located within the established neighborhoods of Montclair, the Zipstein Residence began as an unassuming American saltbox colonial with a central-hall plan and attic above—a familiar domestic type with little outward distinction. Yet its owners, a creative couple deeply engaged in photography, design, and contemporary culture, sought something entirely different from the conventional suburban renovation. They understood architecture as an artistic act and asked that the house become a more expressive setting for modern life.

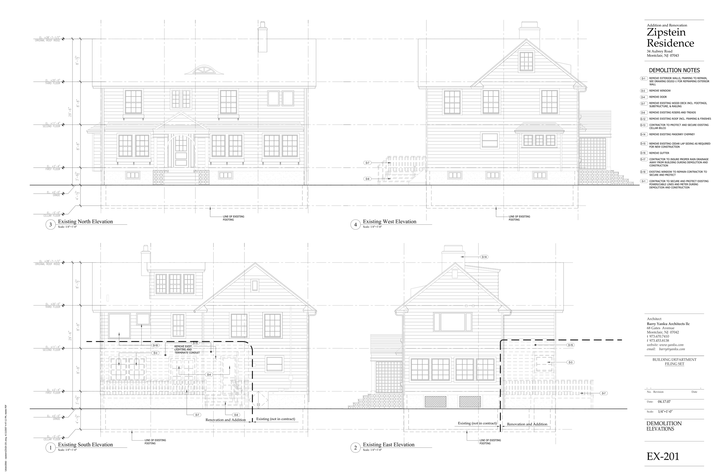
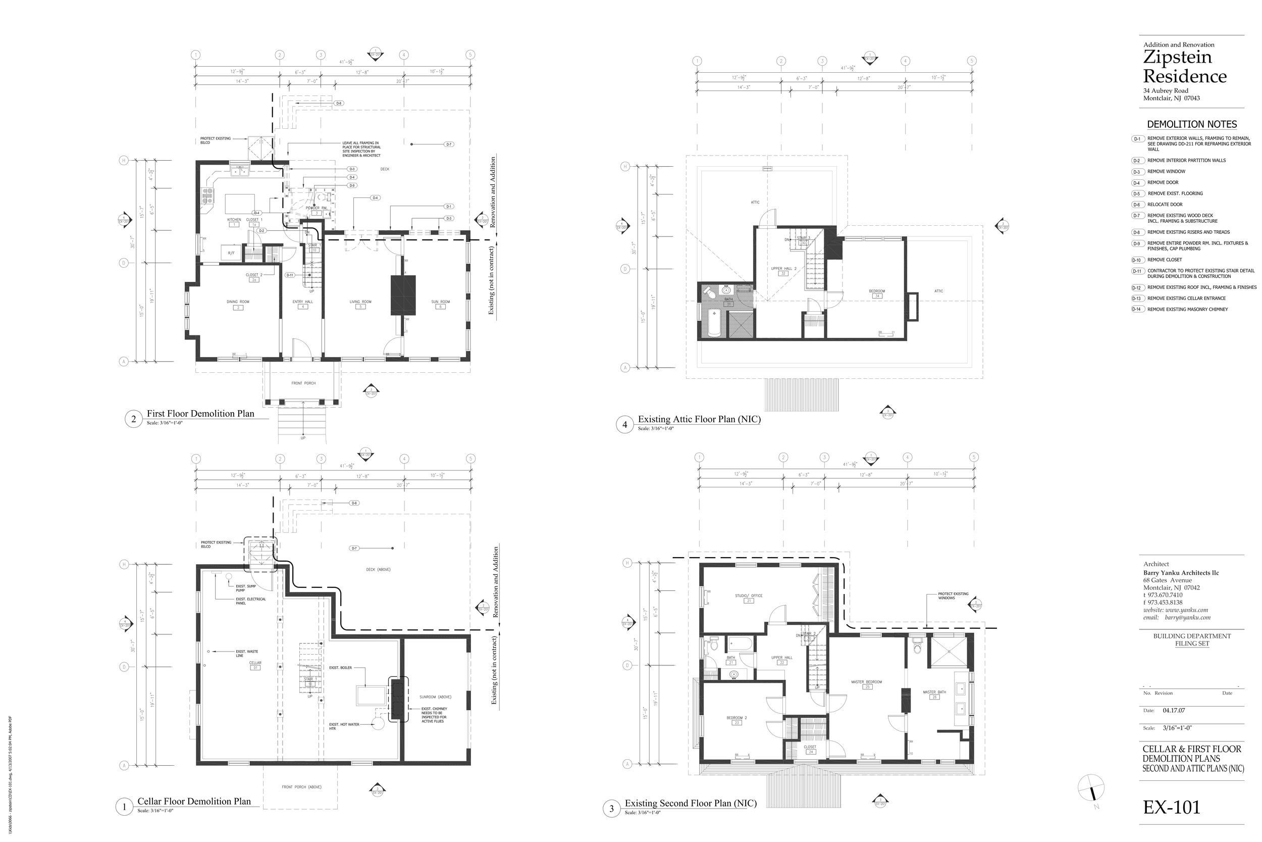
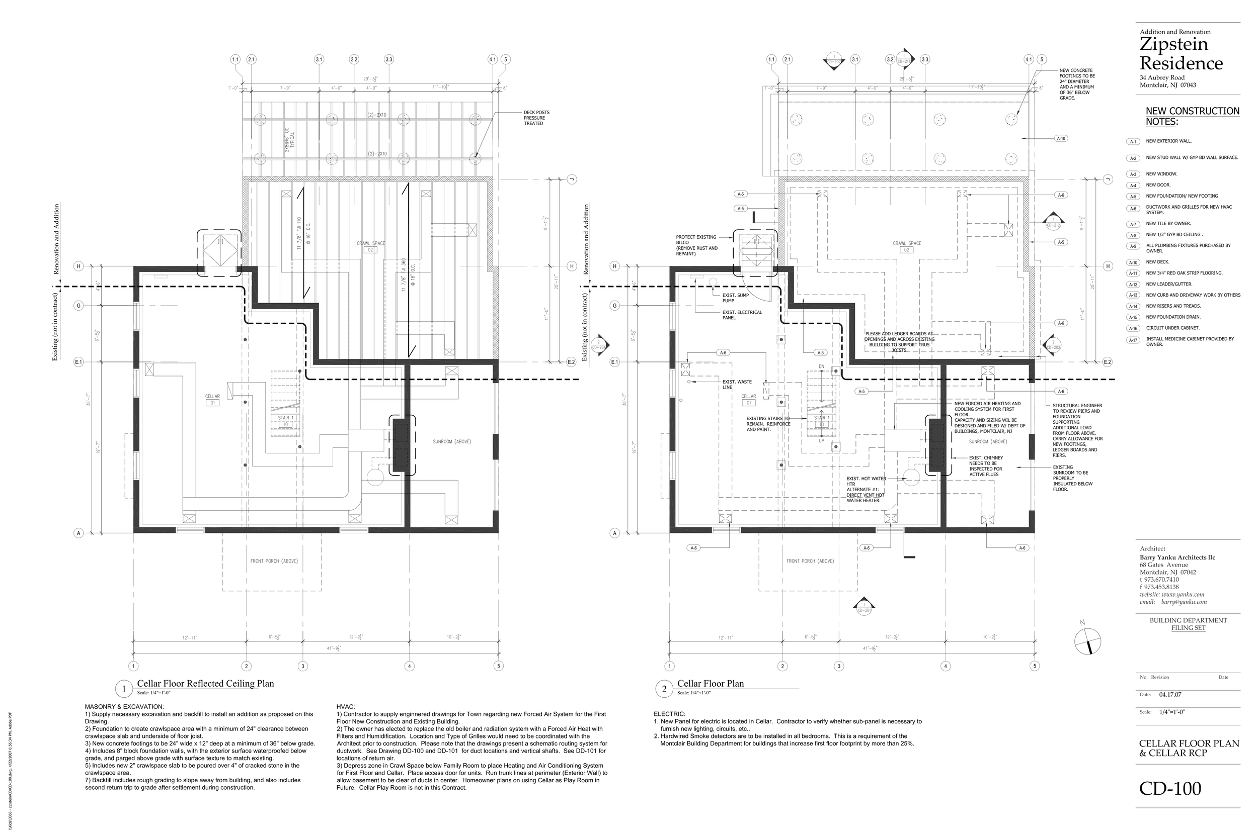
Because the front of the property was governed by strict zoning and historic expectations, the design strategy turned to the rear, where transformation could occur without disturbing the streetscape. The original façade was carefully preserved, allowing the house to remain visually unchanged from the public realm. Beyond that threshold, however, the residence opened into an entirely new architectural world. Expansive glazed walls connected interior living spaces to a patio, pool, and garden, all organized along strong axial lines that visually extended the house deep into the landscape. The rear elevation became transparent, open, and spatially fluid—turning a conventional home into a sequence of indoor and outdoor rooms.

Architecturally, the Zipstein Residence drew from the disciplined modernism associated with Charles Gwathmey while also absorbing the broader influence of contemporary residential design of its time. Clean geometries, light-filled volumes, and a seamless relationship between architecture and site gave the project an almost West Coast sensibility—more California pavilion than suburban colonial. Hidden behind a familiar front, the house became a quiet surprise: traditional to the street, boldly contemporary to the garden.

Previous
Previous

Moore Residence

Next
Next

Highboune Cay Residences