Highboune Cay Residences

Highbourne Cay — Highbourne Cay Residences

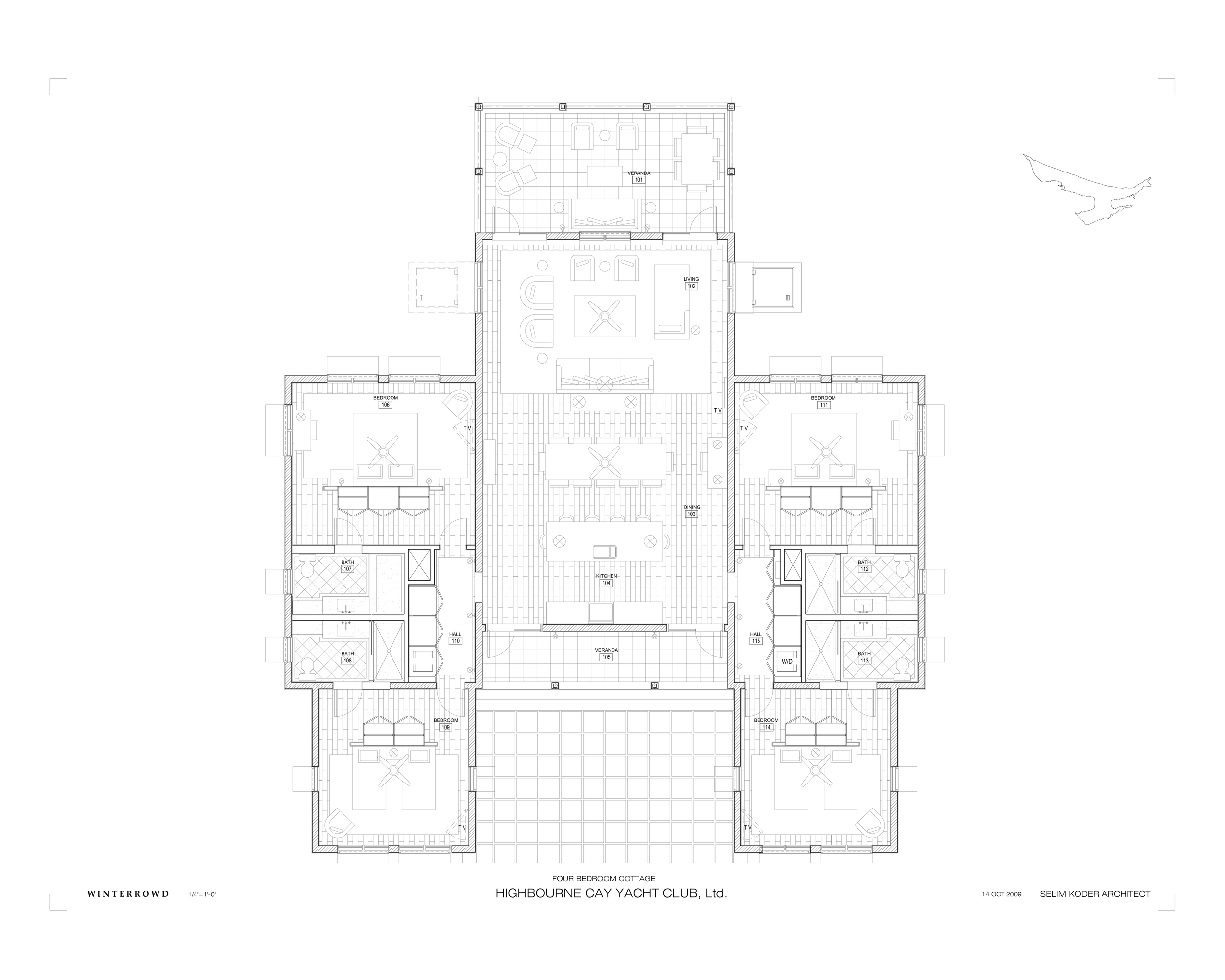
Set within the remarkable marine landscape of Highbourne Cay, the Highbourne Cay Residences formed a larger vision for hospitality and private island living. The commission included six rental cottages ranging from two-bedroom to four-bedroom accommodations, three private owner residences, and a harbor-side café serving as a social center for arriving guests and island residents. Rather than conceive each building as an isolated object, the work approached the island as a connected settlement—where architecture, pathways, views, and shoreline experience would operate as a unified whole.

Architecturally, the homes drew from the vernacular traditions of the Bahamas: elevated forms, shaded porches, pitched roofs, and materials suited to climate, salt air, and tropical light. Yet beneath their traditional outward character, the plans were contemporary in organization and lifestyle. Interiors opened fluidly to terraces and breezeways, bedrooms were positioned for privacy and outlook, and living spaces were arranged to capture cross-ventilation, sunlight, and views toward harbor or sea. The rental cottages balanced intimacy with hospitality, while the private residences were tailored to the individuality of each owner and their relationship to the island landscape.

The broader achievement of Highbourne Cay was the fusion of timeless island architecture with modern planning sensibilities. Buildings were sited carefully to preserve views, create community, and reinforce a walkable coastal rhythm between cottages, homes, marina, and café. The result was not simply a collection of houses, but the shaping of an island environment—where contemporary patterns of living were expressed through the enduring language of Bahamian domestic architecture.

Previous
Previous

Zipstein Residence