Pepsico

Pepsico

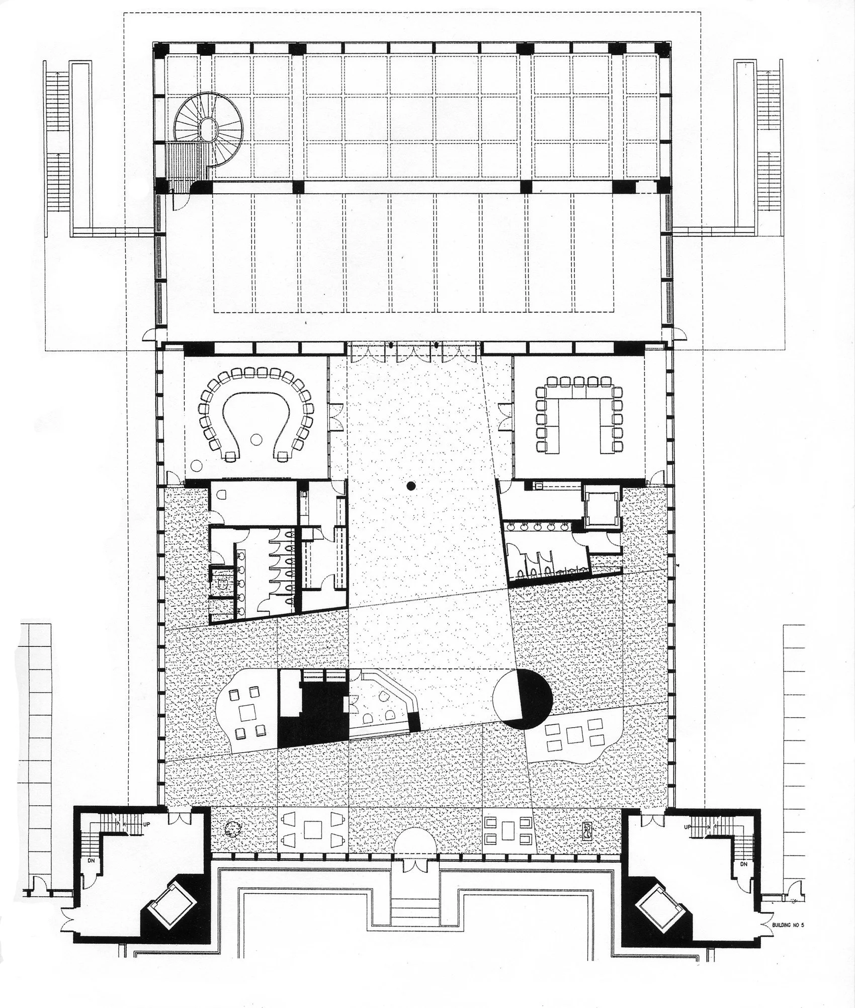
This corporate office building and park was originally, designed by Edward Durrell Stone. Adding to this facility which had a very strong geometry imposed heavy constraints on adding additional program space. We extended the dining area and floors above it with a articulated glass cube with the signature deep mullion sys- tem already part of the original design.

This particular component of the multi-phased renovation is illus- trated on these two pages. The extension of the middle building a cafeteria and dining hall, required a careful examination of build- ing assemblies of the 1960’s. Once we explored the exterior mate- rials and researched the ability to recreate the look a parti was developed. The buildings geometry dictated a stepping structure shown at the right in a series of plans that was expressed horizon- tally in one direction. This move allowed a sympathetic siting of the building in an highly articulated park and sculpture garden.

By extending the building out we were able to maintain the strong circulation system within the existing complex and add to the din- ing halls important position within the gardens. A series of rooftop terraces and an extended plaza enlarged the publics access and views to this extraordinary garden and sculpture park.

Previous
Previous

Lake House

Next
Next

The Harsimus Branch Embankment