Cameron Museum

Louise Wells Cameron Art Museum

Wilmington, North Calorina - 2003
Gwathmey Siegal Associates Architects

The Louise Wells Cameron Art Museum is the primary visual arts center in southeastern North Carolina with a permanent collection of 18th, 19th and 20th Century North Carolina and American art. The museum is also re- nowned for its temporary exhibitions of North Carolina and national artists. As the only art museum in a 100-mile radius, the new facility represents a major destination in North Carolina.

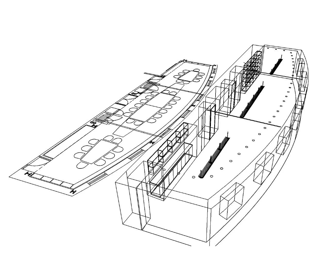
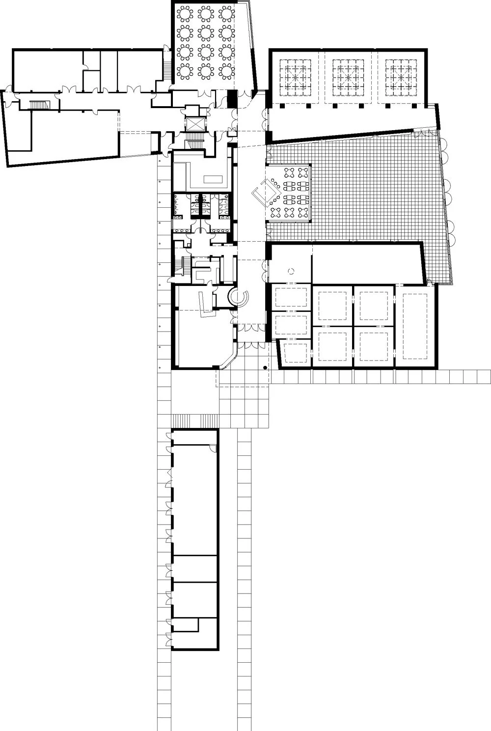
The new 35,000 square foot facility includes exhibition galleries, a multi-purpose auditorium, painting and ceramics studios, an arts research library and an outdoor sculpture court. Support facilities include a museum shop, art storage areas, a cafe, and staff offices.

The site is exceptional not only because of its history—with remains of trenches from the Civil War battle in which the Union forces captured the city of Wilmington—but also due to its location at the confluence of two major regional arteries (Independence Boulevard and 17th Street). The building serves as its own “signage” for the entire institution.

Previous
Previous

Allen County Public Library

Next
Next

432 Park Ave Residential Tower