Halbert Residence

Montclair — Early Montclair Residence

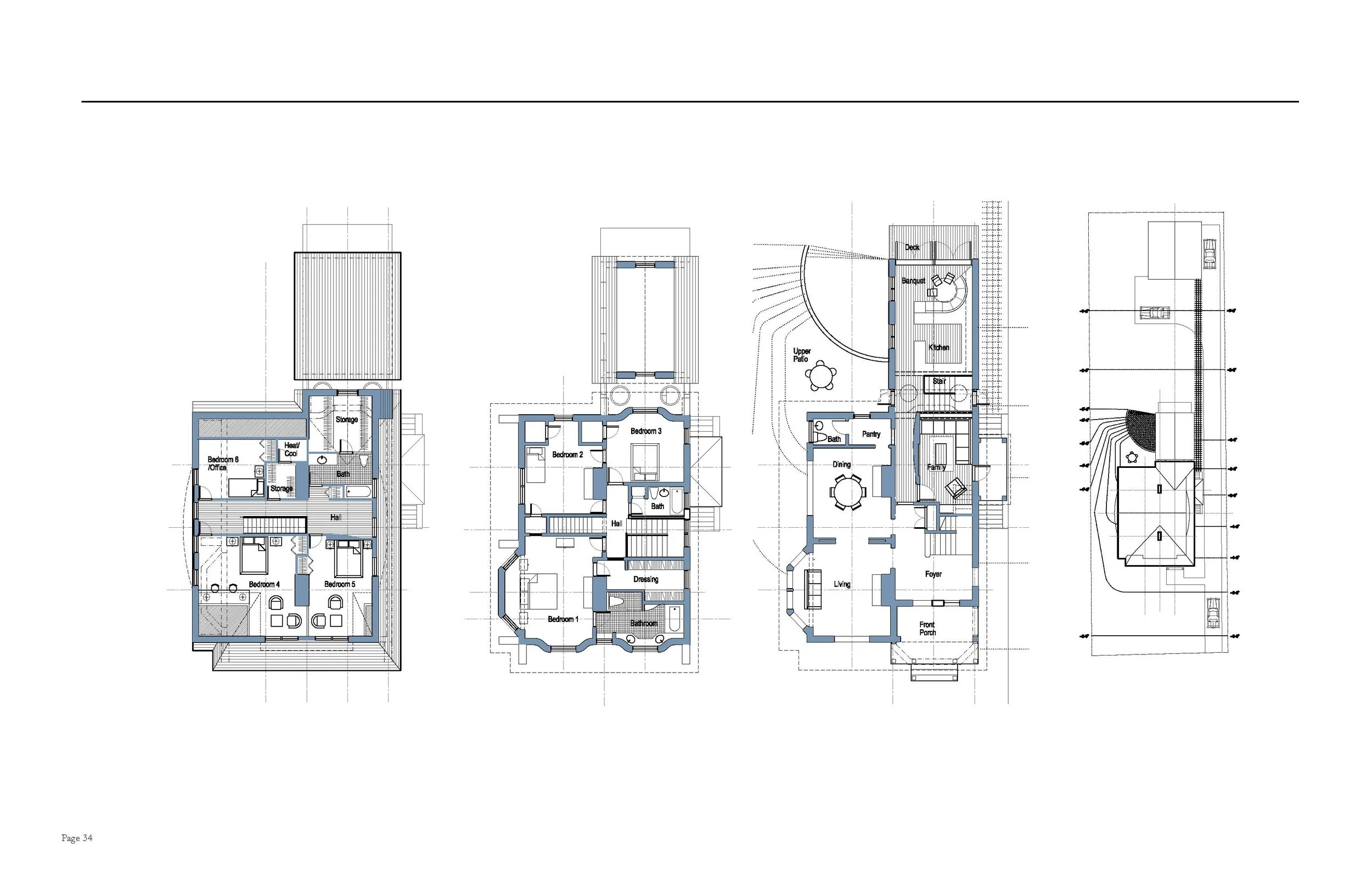
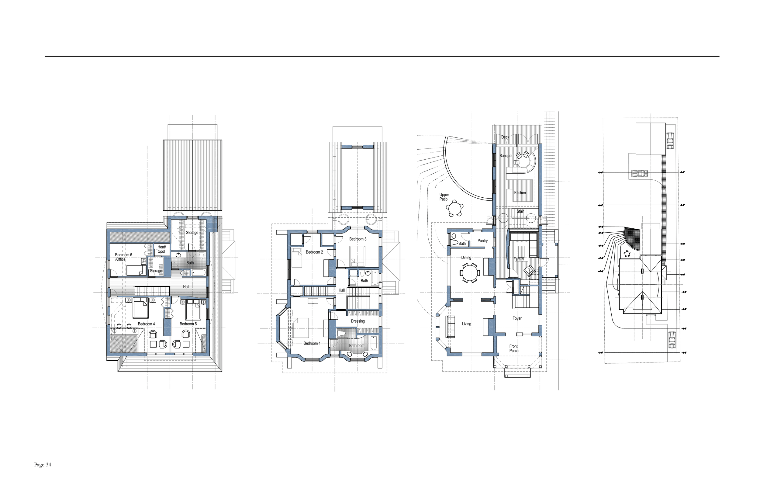
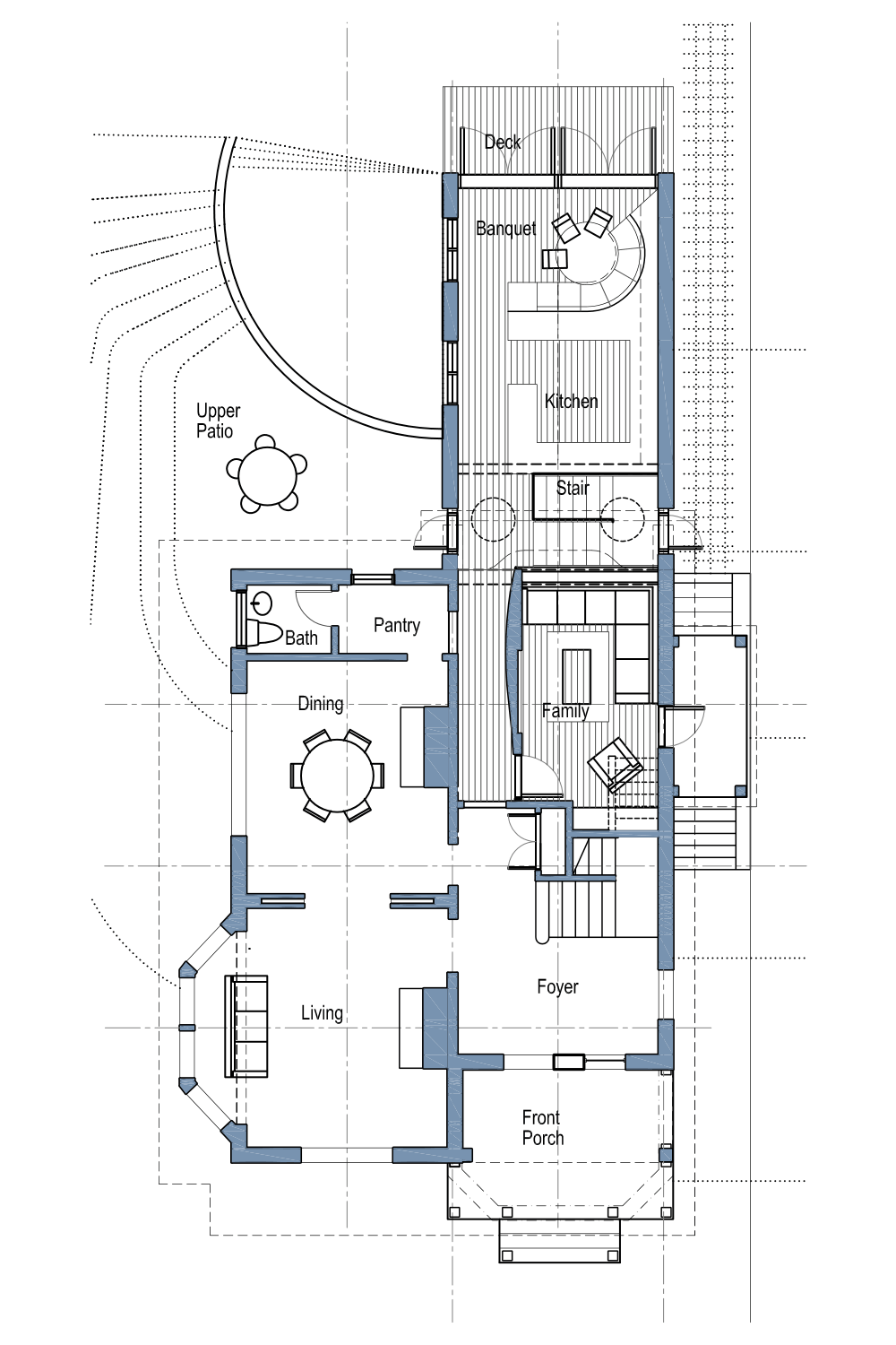
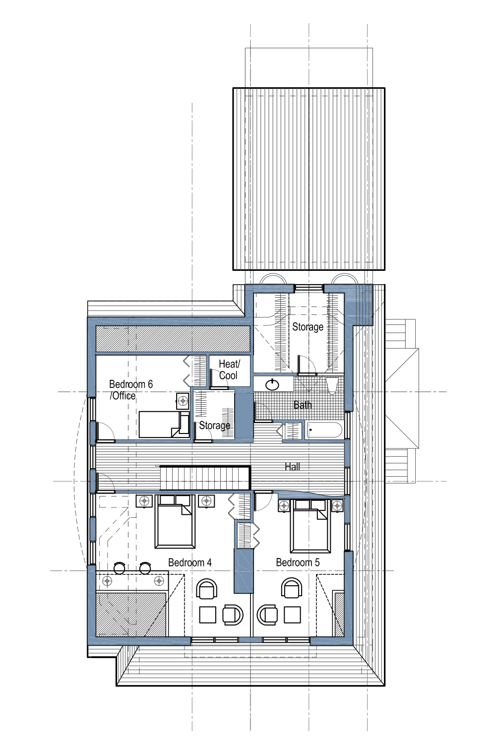
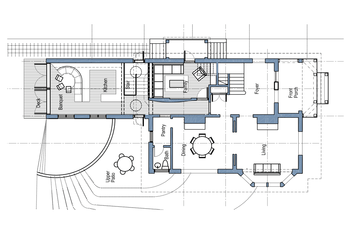
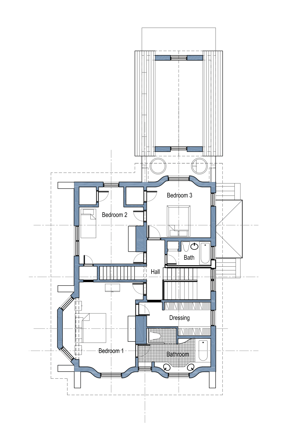
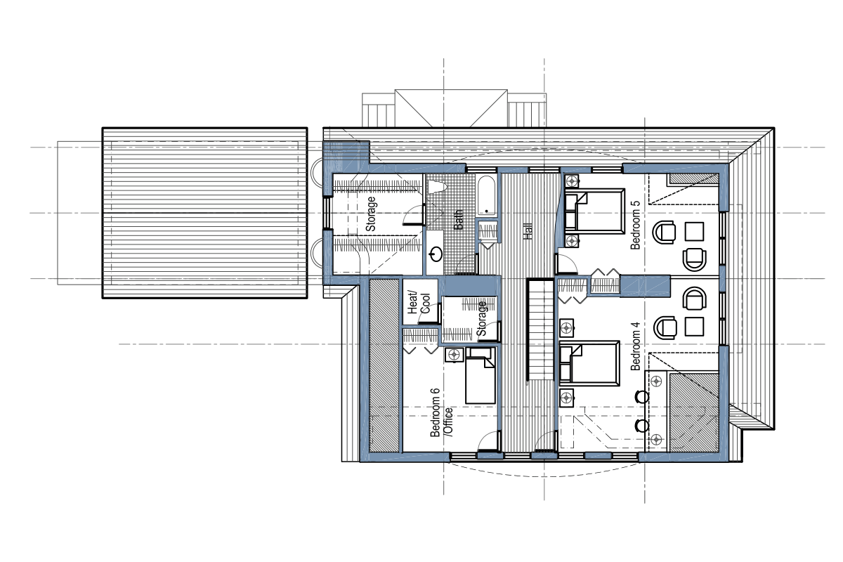
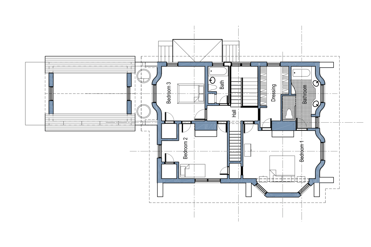
Among the first residential commissions following Room for Thought, this early Montclair project centered on a distinguished colonial home enriched with Tudor influences. Steep roof forms, deep overhangs, and pronounced triangular gable motifs gave the residence a strong architectural identity and an unmistakable presence within the neighborhood. Set on a deep and generous property with a long driveway leading to a detached rear garage, the site offered an unusual opportunity to think beyond the house itself and consider the full composition of buildings, landscape, and movement across the property.

The design transformed the rear grounds into an orchestrated relationship between two opposing structures: the historic main house and a reimagined carriage-house garage beyond. Between them, a sequence of multi-tiered terraces and patios responded to the site's gentle slope, creating outdoor rooms that connected architecture to garden. Because the grade descended enough to expose the lower level at the rear, the house could open directly onto the landscape, allowing interior spaces to expand outward. The original compartmentalized plan of geometrically ordered rooms was selectively opened and reoriented so that the experience of the house extended visually and physically into the yard.

This project was deeply influenced by my experience in the studio of Charles Gwathmey, particularly the lessons embodied in his celebrated house and studio for his parents. From that work came an understanding of how buildings can be composed within a landscape as related forms, and how interior life can flow naturally toward exterior space. At Montclair, those principles were translated into a suburban setting: a historic residence reframed by contemporary planning, secondary structures, and a carefully composed garden environment. The result was both respectful to tradition and modern in spirit.

Next
Next

Buck Goulder Residence